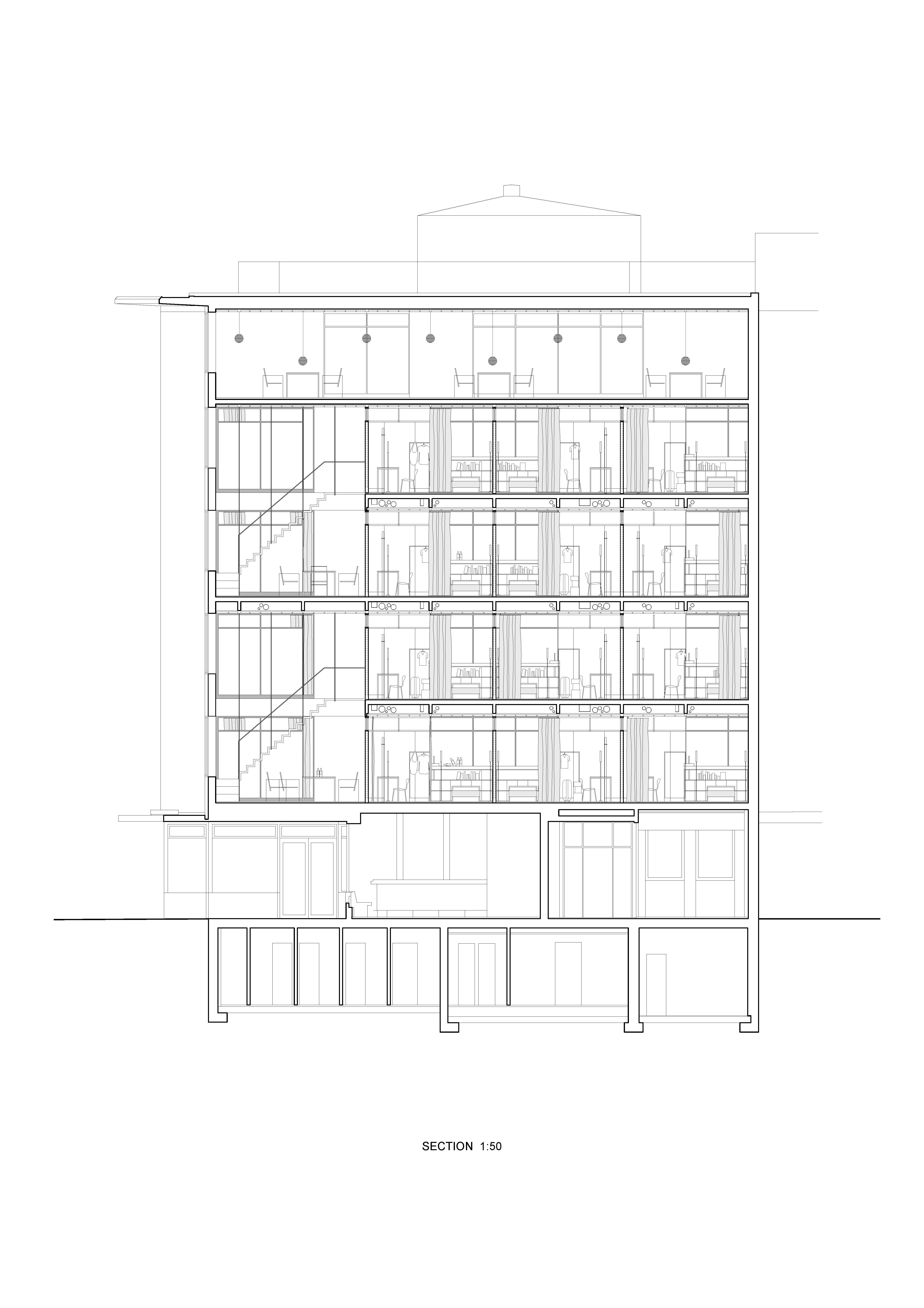
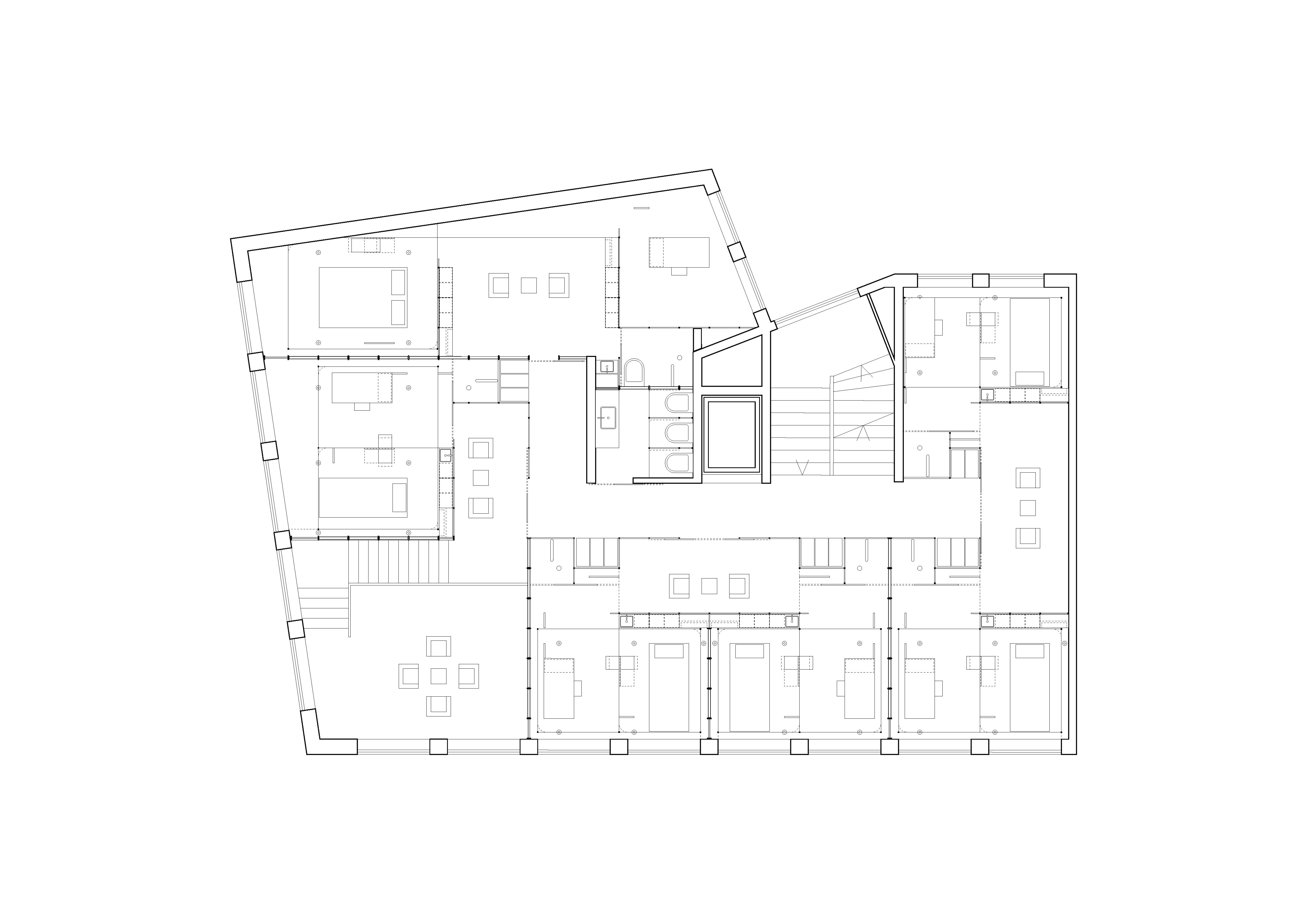
007-A New Hotel In An Old Office
Date: 2019-02
Location: Kalkbreitestrasse 33, Zurich, CH









Architecture Design Studio (V - IX) in ETH, under Professor Adam Caruso
Site: Kalkbreitestrasse 33, Zurich, Switzerland
Building Ground Area: 1516 m2 (6 floors plus roof terrace and 1 basement)
The task of this design studio is: by studying the given references, which situated in different time eras and locations in Europe, one could learn the spirits of the interior from it, then by making critical thinking on that, transform the “Hidden Interiors“ into the new given sites, which is actually an existing building in Zurich.
With the spirit, grids, which I got both from the Palais Stoclet by Josef Hofmann, and from the mid 20 centuries SOM curtain wall facade in the existing building, I sounded out the extreme between the privacy and the publicity.